ID CP2084317

Cladire Birouri 3.420MP UTILI Teren 5.470MP Bulevardul Muncii 18

Această proprietate nu mai este activă,
te invităm să vizualizezi proprietăți similare

ID CP2084317

2,980,000 € + 21% TVA

Spațiu de birouri de vânzare
Iris, Cluj-Napoca
3,426 mp
1980

Situată pe Bulevardul Muncii Nr.18, clădirea beneficiază de o poziție excelentă, cu acces facil la principalele artere de transport ale orașului, precum și la diverse mijloace de transport public. Usurința cu care se ajunge în centrul orașului și zonele rezidențiale și comerciale fac din această locație un hub ideal pentru afaceri.

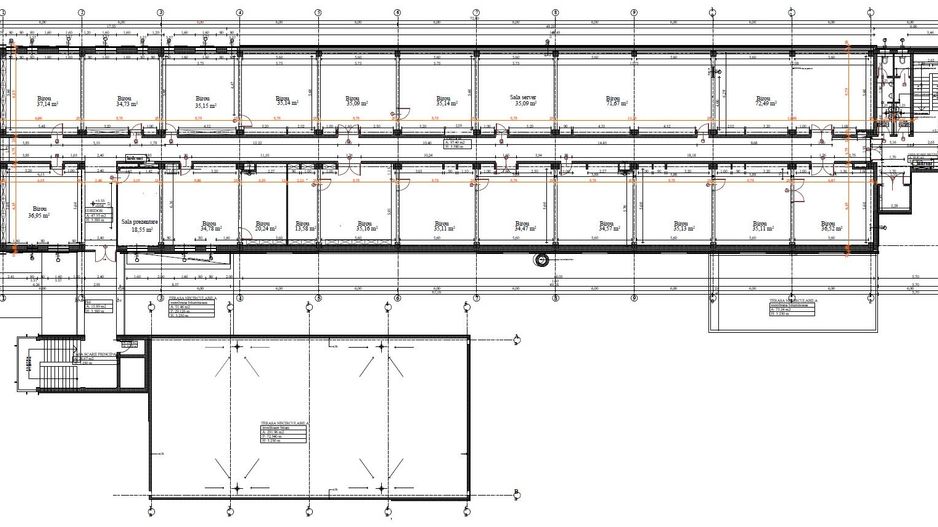
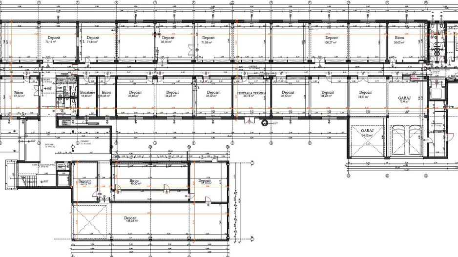
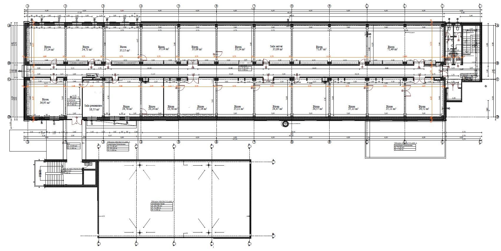
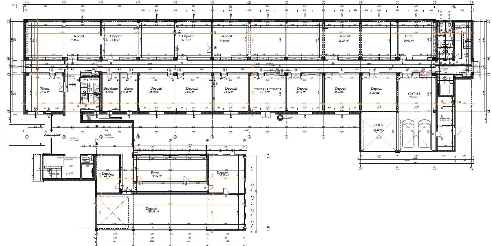
Această clădire de birouri este dispusă pe trei nivele, oferă un spațiu de lucru modern și funcțional, ideal pentru companiile în căutare de un mediu de business în plină dezvoltare. Cu o suprafață utilă generoasă de peste 3.400 MP și un teren în proprietate de 5.470 MP, clădirea este perfect adaptată pentru a satisface nevoile de funcționare și dezvoltare ale afacerilor de orice dimensiune.

Dispunerea și compartimentarea actuală a imobilului dau o mare flexibilitate în amenajarea interioară, pentru a se adapta diferitelor tipuri de activități și echipe.

Parcarea generoasă de pe terenul proprietății, poate dispune de un număr de aproximativ 50 de locuri, atât pentru angajați cât și pentru vizitatori.

Metroul din Cluj-Napoca reprezintă un pas important spre modernizarea infrastructurii de transport a orașului, având potențialul de a transforma Clujul într-un oraș mai accesibil, mai verde și mai atractiv pentru locuitori și mediul de afaceri.

Linia de metrou planificată va avea aproximativ 21 de kilometri și 19 stații, incluzând stații în zonele cu densitate mare de populație și noduri intermodale pentru a facilita tranziția către alte mijloace de transport public. Una dintre aceste stații, și anume capatul estic al magistralei se va afla chiar în fața clădirii noastre de birouri.

Citește mai mult

  • Tip imobil
    Clădire birouri
  • Etaj
    Parter, 1, 2
  • Clasă birouri
    A
  • Număr camere
    50
  • Suprafață construită
    4,010 mp
  • Suprafață utilă
    3,426 mp
  • Disponibilitate
    Imediat
  • Suprafață totală birouri
    3,426 mp
  • Compartimentare spațiu
    Compartimentat
  • Parcări suprafață disponibile
    50
  • An construcție
    1980
  • Număr etaje clădire
    2

Facilități

Centrală termică
Internet
Panouri solare
Parcare deschisă
Stație de autobuz în apropiere
Stație de tramvai în apropiere
Telefon
Necesare:

Site-ul nu poate funcționa corect fără aceste cookie-uri. Vezi cookie-urile

Statistică:

Strângem statistici anonime despre voi, vizitatorii unici, pentru a vă îmbunătăți experiența dumneavoastră. Vezi cookie-urile

Marketing:

Pentru a ne promova mai eficient serviciile noastre, folosim cookies pentru a vă identifica și a vă oferi proprietăți și servicii personalizate. Vezi cookie-urile

Acest site folosește cookies, află detalii. Alege ce tipuri de cookies dorești să permitem: